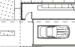
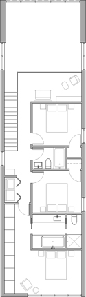
Located on a rare city street without alley access, the owners of this new construction single-family residence elected to house a one car garage from the front of the dwelling. A multi-level, open volume plan was used to accommodate the young family with a large entertaining kitchen and den on the first level, living space and study area on the second level, and bedrooms on the third level.
